Trabajamos activamente en la coordinación con múltiples entidades públicas, fundamentales para la aprobación y correcta ejecución de los proyectos:
DOM (Dirección de Obras Municipales): tramitación de permisos, certificados, regularizaciones y recepciones finales.
SEREMI MINVU y MINVU Central: revisión y aprobación técnica de proyectos habitacionales y asignación de subsidios.
SAG (Servicio Agrícola y Ganadero): aprobación de emplazamientos en suelo rural, subdivisiones prediales y normativas agro territoriales.
SII (Servicio de Impuestos Internos): regularización de propiedades, acreditación de dominio y procesos de tasación.
SEREMI de Salud: aprobación de condiciones sanitarias del proyecto (instalaciones, pozos, fosas, aguas grises y potables).
Conadi, Bienes Nacionales y otros organismos: en casos de propiedad indígena, terrenos fiscales o situaciones especiales de tenencia.
Nuestros servicios abarcan:
DS10 – Mejoramiento y Ampliación de Viviendas
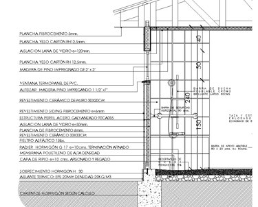
Diseñamos intervenciones adaptadas a las necesidades reales de cada familia: ampliaciones, acondicionamiento térmico, accesibilidad universal y mejoramiento estructural.DS49 – Vivienda para Sectores Vulnerables
Desarrollamos proyectos de vivienda social con enfoque local, respetando las condiciones culturales, climáticas y sociales del entorno. Acompañamos todo el proceso: desde la elección del terreno hasta la construcción.DS27 – Reconstrucción y Puesta en Valor Patrimonial
Participamos en proyectos de recuperación de viviendas dañadas por desastres naturales o inmuebles patrimoniales, gestionando su reconstrucción en coordinación con la DOM, MINVU y otras entidades pertinentes.




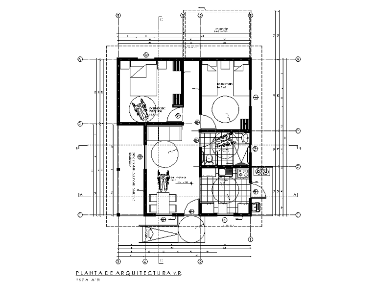
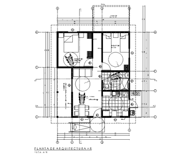
Entregamos nuestra experiencia en diversas zonas rurales y urbanas de Chile, acompañando a familias, organizaciones y municipios en el acceso a programas como DS10, DS49 y DS27.


Consultas






